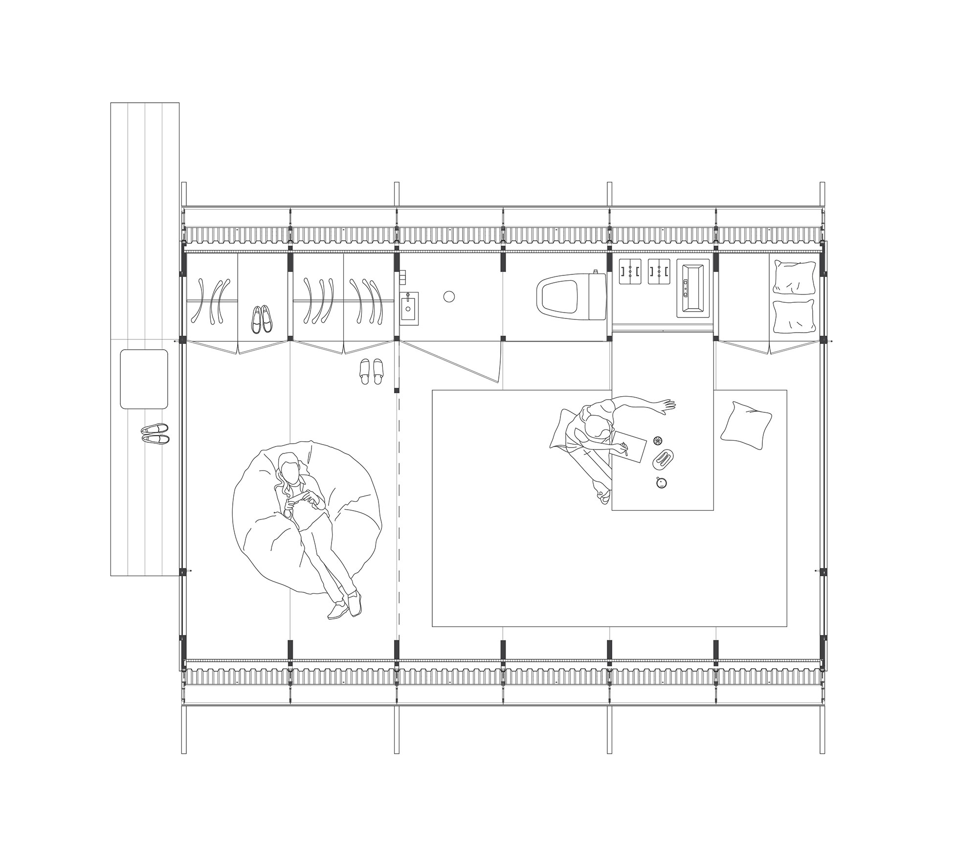
For over a decade, small living spaces have been gaining popularity, particularly those that allow for living close to nature and guarantee a sense of independence. In this case, we can see a project by Case Study Homes, featuring the Dew Catcher cabin built on a slope in Portugal. What makes this project unique is the roof designed to collect water from dew, precipitation, and moisture. The interior space has been carefully planned down to the last detail.

